Ref : HH24005
Request More Info
Villa for sale
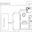
A modern Ibiza style house on 1 level, to be constructed in La Fustera, Benissa, 500 mts from the sea. 3 bedrooms, 2 bathrooms, lounge/dining room, kitchen. Outside an 8 x 4 swimming pool with terraci...
3beds
2bath
pool



