Ref : v1131
Request More Info
Villa for sale in Canillas De Aceituno
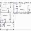
overview : Stunning rural property - exceptional country house with 5 bedrooms, 5 bathrooms and a cloakroom/wc together with a separate self contained guest house with 1 bedroom and 1 bathroom set wi...
6beds
6bath
pool








